ŞU BİZİM BİTPAZARINA İŞTE ŞİMDİ NUR YAĞACAK
Yıllarca garaj taşındı diye dert yandı bu bölgenin esnafı, köy dolmuşları, İzmir burunlu otobüsleri taşındı garaj yer değiştirince. Diretildi, çok konuşuldu. Artık karar verilmişti taşınacaktı garaj. Alışılmıştan vazgeçmek çok zor herkes için, bu da öyle oldu. Garaj yeni garaj adını alıp aşağıya taşınınca Bit Pazarı diye bilinen çarşı şimdi adını taşımağa başlıyor, gün be gün sokaklar kararıyor, kepenkler iniyor, insanlar seyrekleşiyor. Çeşnegir ve Taşçılar Mescidi cemaati azalıyor, saflar boşalıyordu. Hatuniye Camisi kalan esnafın cenazelerde birbirlerini gördüğü aralarından göçüp gidenlerin ardından gözyaşları döküyor, yaşlar arasından anıları anlatıyorlardı, anlattıkça yaşlar dinmiyor düğüm oluyordu kelimeler, buruk, hüzünlü, acı ifadeler ile.
Cumhuriyet Hamamı; Dağdan taşıdığı özel yayla suyu olan hamam, külhanı yanmaz, dumanı tütmez olmuştu, önce suyu soğudu, peştamallar iplere asılı kaldı, tellak sokakta çınarların gölgesinde sigarasını üflerken çınar yapraklarını savuruyordu. Kollu makineci Hilmi Usta, çizmeci Çakmak Usta bıyıklarını burarken Alaşehir’e sipariş körüklü çizmeleri vitrine koymuş müşterisini bekliyordu. Pençe yapan ustalar köseleyi diz demiri üstünde döverken nasır tutmuş dizi hiç duymuyor idi hızla inen çekicin darbelerini. Sayayı gererken ayakkabı kalıbına dudağına sıraladığı monte çivilerinden dudakları kalınlaşmış ayakkabı kalfası, ahi edebi ile ustasına saygıdan alçak sesle çıraktan doğrultulmuş çivileri istiyordu. Ayakkabıcı esnafı çoğunlukta idi çarşıda, mezat olurdu her sabah erkenden seleye sıralanmış parlatılmış cilalı ayakkabılar mezata çıkar kavaflar gelirdi arkadan.
Müzayededen alınan malların satıldığı Bedesten de kapılarını kapattı, depo oldu.
Arada bir açılan heybetli demir kapısının arasından küf kokusu çarşının uzaklarına yayılıyordu. Kalın duvarları zamana dayanıyor üstte ki dar pencerelerden huzme halinde ki ışık içeriyi aydınlatmağa yetmiyordu. Çatısını ot bürümüş duvarının birinde İncir Ağacı hayata tutunmağa çalışıyor idi. Kapı girişinde ki mermer çeşmenin suyu akmaz sallanan boş zinciri tassız kalmıştı.
Kalan esnaf iş değiştiriyor, bir canlılık olur mu diye?, arayış içerisine giriyor, bulamayan tebdili mekan ediyor, garaj ile beraber taşınıyor idi. Birkaç müdavim vazgeçemiyor, “çıraklığım çocukluğum burada geçti ölüm çıkar buradan ayrılmam” diyor buruk bir inatla direniyorlardı. Sonunda onlarda Allahın emrine boyun eğerek göçüp gittiler. Hem dünyadan, hem çarşıdan. Yılların şahitleri asırlık çınarlar kalmıştı, Arnavut taşlı yollar, ıssız kaldırımlar, sessiz rüzgar.
Gün geldi devran döndü yıllar yıllara eklendi en son kalmış garaj duvarları da yıkıldı 2009 senesinde. Zaman hızla akıp geçmeğe başlamıştı insanlara zaman yetmiyor koşuşturmaktan kimse kimseyi görmüyordu. Araçlar çoğalmağa, sokaklar daralmağa, esnaf değişmeğe, çarşı bir arayışa, kimlik kazanmağa çalışıyordu.
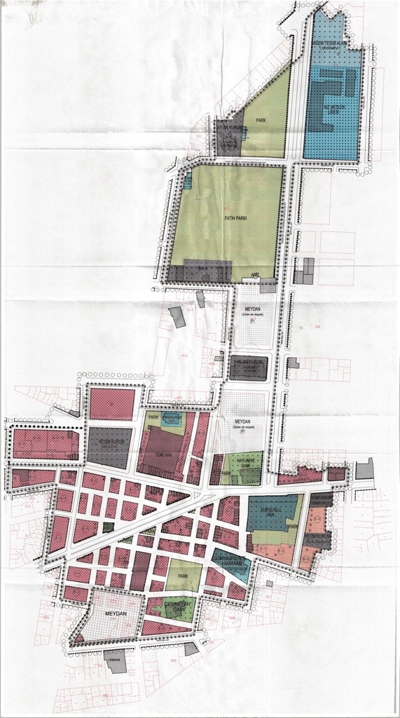
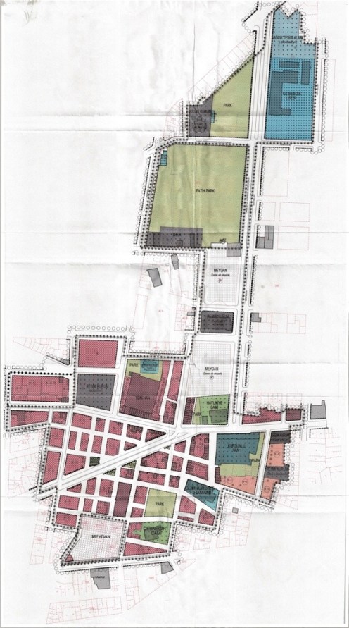
Yeni bir terim çıktı “Hipermerkez” yani şehir merkezinde ekonomik, kültürel, sosyal vb birçok fonksiyonu barındıran, şehir merkezinin merkezi olarak tanımlanabilecek bölge.
Bit Pazarına artık nur yağacak; Yeni esnaf, yeni mağazalar, dükkanlar şekil değiştirecek, geri gelecek dönen giden insanlar, ağaçlar sulanacak dallarına su yürüyecek belki hamamın külhanı yanmayacak dumanı tütmeyecek ama tellak güvenlikçi üniforması ile müze olmuş hamamın kapısında duracak artık bıraktığı sigaraya kızacak “yıllardır seni çektim beni mahvettin” diye. Çıkmayan canda ümit vardır diyenlerden geri de kalmışların ümitleri hayat bulacak, sokakların kararan cehresi değişecek, vitrinler ışıldayacak, dükkan cephelerinin boya kokusu bedestenin küf kokusunun yerini alacak, Bedesten tüm haşmetiyle ortaya çıkacak. Eski garaj adı dillerden silinecek Bedesten, meydanı ile hipermerkezin merkezi olacak.
Bir sokak nostalji sokağı, diğeri marka mağazalar zinciri, arada kafeler, kahveler restoran ve lokantalar.
Alışveriş merkezlerinin dünyada ki trendi bu, bir binaya tıkılıp klimalar ile hava üflemenin yapay ortamın yerini, güneşi tutup rüzgara kapılıp sokaklarda dolaşmak alıyor. Bol yeşilli, çicekli, araçsız sevgi yolları adı gibi sevgi dağıtıp mutluluk saçacak esnaf gülecek müşteri gülecek çoluk çocuk bu çarşıda evindeymiş gibi gezecek. Kafe önüne atılmış masalar açlık bastırmak için dolarken bir sokak ötede kahve dünyasında içilecek kahveler. Misafirlerimizi burada ağırlayıp yabancılar buraya gelecek. Nostalji Dükkanları ile eskilere giderken, marka mağazalar ile günümüze döneceğiz. Her kesime her yaşa hitap eden bu çarşıda, gece ışıltılı sokaklar kovacak karanlığı, sabah güneş doğarken ay batacak.
Çarşı hep aydınlık, hep canlı, hep açık kalacak, literatürde ki bu yerler için söylenen hipermerkez, süpermerkez diye anılacak Manisa’da.

Yorumlar kapatıldı.